ΑΝΑΦΟΡΕΣ ΣΕ ΠΡΟΣΦΑΤΕΣ ΕΚΔΟΣΕΙΣ
1. ΚΑΛΛΙΟΠΗ ΚΟΝΤΟΖΟΓΛΟΥ: Project FIX
Αναβιώνοντας το μέλλον
2. ΓΙΩΡΓΟΣ ΠΙΤΤΑΣ:
ΑΛΦΑΒΗΤΑΡΙ ΕΛΛΗΝΙΚΗΣ ΓΑΣΤΡΟΝΟΜΙΑΣ
3. ΔΗΜΗΤΡΗΣ ΦΙΛΙΠΠΙΔΗΣ: ΑΝΩΝΥΜΗ ΑΡΧΙΤΕΚΤΟΝΙΚΗ
Μία άρρητη παρουσία
_____________________
1.
ΚΑΛΛΙΟΠΗ ΚΟΝΤΟΖΟΓΛΟΥ
PROJECT FIX
Αναβιώνοντας το μέλλον
Panos Kokkinias, EMST, 2019, Digital Inkjet Archival Print,120X230 cm
Με την σκωπτική φωτογραφία του Πάνου Κοκκινιά στο εξώφυλλο, με την αγέλη των αδέσποτων σκύλων μπροστά στην κλειστή είσοδο του ΕΜΣΤ, κατέφθασε το νέο βιβλίο της Καλλιόπης Κοντόζογλου, προετοιμάζοντας μας για μια εξομολογητική αφήγηση της περιπετειώδους διαδρομής σχεδόν 12 ετών, του πολύπαθου αυτού κτιρίου σχεδιασμένου από τον Τάκη Ζενέτο, που η ιστορία του ξεκινά από το 1850, όπως απεικονίζεται στο ενσωματωμένο τετράπτυχο χρονολόγιο στο βιβλίο. Μία έκδοση με τίτλο «Αναβιώνοντας το μέλλον, Project FIX, για την οποία ο Ηλίας Ζέγγελης σημειώνει στον Πρόλογο του, ότι αποτελεί μια σύνθεση ενός προσωπικού ημερολόγιου, μιας αρχιτεκτονικής μαρτυρίας, της ιστορίας του κτιρίου, ενός θεωρητικού κειμένου για τον σχεδιασμό του και ενός ημερολογίου κατασκευής του έργου.
Ένα βιβλίο καθαρτήριο και ταυτόχρονα λυτρωτικό, σημειώνει στα Προλεγόμενα η Καλλιόπη Κοντόζογλου αρχιτέκτων υπεύθυνη του έργου και επικεφαλής της ομάδας κατά την φάση της μελέτης εφαρμογής, όπως η ίδια δηλώνει, που ακολούθησε μετά την αρχική μελέτη που πραγματοποιήθηκε σε συνεργασία με το Γραφείο 3ΣΚ Στυλιανίδη Α.Ε.
Μετά την πρόσφατη μνημειώδη επιστημονική έκδοση της διδακτορικής διατριβής της Ντόρας Θεοδωροπούλου με τίτλο «ΦΙΞ FΙX 120+ XRONIA AΡXITEKTONIKH», ακολουθεί το βιβλίο αυτό από τις εκδόσεις Ποταμός, για το ακρωτηριασμένο αυτό κτίριο, εξ ίσου χρήσιμο, που έχει ένα διαφορετικό ενδιαφέρον και χωρίζεται σε τρία μέρη. Το πρώτο μέρος με τίτλο «Ποιος , πότε που» αναφέρεται στην ιστορία του κτιρίου και καταλήγει σε μια ευγενική και επι της ουσίας αναφορά στην Άννα Καφέτση, που οραματίστηκε αυτό το Μουσείο, τονίζοντας παράλληλα τον διεθνή διαπολιτιστικό προσανατολισμό της και τις μάχες που έδωσε.
Η Άννα Καφέτση με την ομάδα του ΕΜΣΤ
Το δεύτερο μέρος περιγράφει την μελέτη με σχέδια και φωτογραφίες και το τρίτο μέρος με τίτλο «Ιστορίες» είναι μάλλον το πιο συναρπαστικό, μέσα από τις προσωπικές αφηγήσεις που ξεκινούν από την παράδοση της μελέτης του διαγωνισμού και ακολουθούν αναφορές από την περιπετειώδη πορεία της κατασκευής του έργου.
Ακολουθεί ο επίλογος από τον αρχιτέκτονα και σύμβουλο της ομάδας της μελέτης εφαρμογής, Tim Ronalds, ο οποίος αναφέρεται στις όψεις, στην αλληλουχία των κυλιόμενων κλιμάκων, στις αίθουσες της μόνιμης συλλογής, στα ξύλινα δάπεδα από ξύλο οξυάς, στην ακουστική των εκθεσιακών χώρων,
Εικόνες από την βεράντα και το εστιατόριο στον τέταρτο όροφο
στο εστιατόριο και στην βεράντα με θέα την Ακρόπολη στον τέταρτο όροφο, στους χώρους κυκλοφορίας, στην αίθουσα περιοδικών εκθέσεων στο υπόγειο, με τους θηριώδης τετράγωνους πεντάμετρους κίονες και την μεγάλη εσωτερική σκάλα προς το ισόγειο που δίνουν στον εκθεσιακό χώρο ένα μνημειακό χαρακτήρα και καταλήγει στο δώμα με την πορεία μέσα από την μεγάλη ράμπα που οδηγεί σαν σε κατάστρωμα αεροπλανοφόρου, με θέα προς την θάλασσα και την Ακρόπολη «Αυτή είναι η πιο δραματική “promenade architecturale” σημειώνει ο Tim Ronalds. Ένας θρίαμβος. Όλες οι σκέψεις για τις απογοητεύσεις αυτού του αξιοθαύμαστου πρότζεκτ εξανεμίζονται.»
Καλοδεχούμενος αυτό ο θετικός σχολιασμός. Περίμενα όμως και κάποιες τοποθετήσεις έστω και κάποιες νύξεις σε σχέση με όλα όσα αρνητικά έχουν σχολιαστεί εδώ και χρόνια, δημόσια και ιδιωτικά. Γιατί είναι γνωστό ότι το κτίριο αυτό, όσο και η μουσειολογική μελέτη έχουν επισύρει και έχουν δεχθεί περισσότερο από κάθε άλλο, μια έντονη κριτική με συγκεκριμένες τοποθετήσεις.
Σέβομαι και εκτιμώ τον μόχθο των συναδέλφων μελετητών αυτού του έργου και παράλληλα και την όλη διαδρομή τους στον χώρο της αρχιτεκτονικής που την παρακολουθώ προσεκτικά. Δεν μπόρεσα ποτέ να καταλάβω τι ήταν αυτό που συνέβαλε στο να πάνε τόσα πράγματα στραβά και να επικρατήσουν κάποιες αδέξιες χειρονομίες στο κτίριο που προκαλούν αμηχανία. Έχω την αίσθηση ότι ο βιασμός της ψυχής αυτού του κτιρίου μέσω του ακρωτηριασμού που υπέστη, και όλες οι εμπλοκές, διαπλοκές, εντάσεις, αδικίες και συγκρούσεις που ακολούθησαν αποτυπώνονται σε αυτό το κτίριο σαν μια κατάρα που παρασύρει την όποια καλή πρόθεση.
Δημήτρης Αντωνακάκης, Συραγώ Τσιάρα
Και ευτυχώς η γαλήνια μορφή και η ευαισθησία του Δημήτρη Αντωνακάκη, παρά τις περιορισμένες δυνατότητες ενός μεταβατικού καλλιτεχνικού Διευθυντή, κατάφερε μαζί με την Συραγώ Τσιάρα να κατευνάσει το θηρίο σε ένα βαθμό και να ανοίξει το Μουσείο.
Οι αδεξιότητες και οι ελλείψεις, βέβαια έμειναν και κάποια στιγμή θα πρέπει να συζητηθούν και να καταγραφούν αναλυτικά, μήπως και μέσα στον χρόνο και με ένα άξιο και τολμηρό νέο μόνιμο διευθυντή, στον οποίο θα δοθούν ισχυρές δυνατότητες, κάποιες μπορούν να αποκατασταθούν.
Η Όψη του ΕΜΣΤ προς την οδό Καλλιρόης
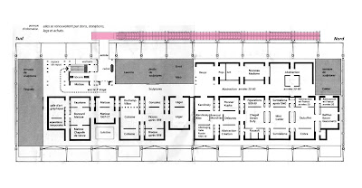
Δεν μιλώ βέβαια για την πολυσυζητημένη όψη της οδού Καλλιρόης που παραπέμπει κατά τους μελετητές στην υποτιθέμενη κοίτη του σκεπασμένου και αόρατου Ιλισού. Μιλώ ας πούμε για το παράδοξο ξύλινο αμφιθέατρο στο υπόγειο που είναι αναστρέψιμο. Και για να προχωρήσω λίγο ακόμη σε πολύ βασικές αρχιτεκτονικές επιλογές που χαρακτηρίζουν την μελέτη:
Ο υπόγειος χώρος των περιοδικών εκθέσεων από την έκδοση.
Δεν μπορώ να εξηγήσω, την ένταξη στο τέρμα του εκθεσιακού χώρου των περιοδικών εκθέσεων με τα υπερμεγέθη υποστυλώματα, μιας μνημειώδους σκάλας πλάτους σχεδόν 6 μέτρων, που απλά συνδέει με τον εκθεσιακό χώρο στο ισόγειο και απλά παραπέμπει σε μεγαλοπρεπείς επιλογές άλλων εποχών, χωρίς λόγο. Πόσο ενδιαφέρον θα είχε αν στην θέση της θα υπήρχε η δυνατότητα έκθεσης του εκάστοτε κορυφαίου έργου μιας περιοδικής έκθεσης.
ΕΜΣΤ, Τομή του «φαραγγιού» μέσα στο οποίο οι κυλιόμενες σκάλες ανεβαίνουν προς το δώμα. Αυτή είναι η δημόσια κατακόρυφη κυκλοφορία.
Τέλος μπορεί κατά τον Tim Ronalds στον επίλογο του βιβλίου, η αλληλουχία των κυλιόμενων κλιμάκων που παραπέμπουν στις αντίστοιχες κυλιόμενες στο Κέντρο Pompidou στο Παρίσι να είναι ευχάριστη και συναρπαστική, υπάρχει όμως μια θεμελιώδης διαφορά. Οι Renzo Piano και Richard Rogers επιλέγουν οι κυλιόμενες να καταλάβουν ελάχιστο εμβαδόν σε σχέση με το μέγεθος των εκθεσιακών χώρων κτιρίου (σημειώνεται στα σχέδια με ρόζ χρώμα), ενώ στο ΕΜΣΤ οι μελετητές με μία γενναιόδωρη χειρονομία, που έχω ξανασχολιάσει, αποδίδουν το ένα τρίτο (1/3) του εμβαδού των ορόφων στην ζώνη ένταξης της κατακόρυφης (κυλιόμενες) και της οριζόντιας κυκλοφορίας (διάδρομοι) που δεν μπορούν να αξιοποιηθούν σωστά ως εκθεσιακοί χώροι, σε ένα μουσείο που ασφυκτιά με σημαντικές ελλείψεις χώρων.
Renzo Piano, Richard Rogers, Κέντρο Pompidou στο Παρίσι, κάτοψη
Σε κάθε περίπτωση το βιβλίο της Καλλιόπης Κοντόζογλου αξίζει να διαβαστεί γιατί εκτός του ότι πρόκειται για μια προσεγμένη έκδοση με πολύ καλό layout και επιλεγμένες φωτογραφίες και σχέδια, αποτυπώνει μια πραγματικότητα μέσα από ένα προσωπικό πρίσμα και αποτελεί άλλη μια ουσιαστική ψηφίδα στο ανήσυχο και πολυσήμαντο μωσαϊκό που απεικονίζει την δραματική 12ετή πορεία ενός πολύπαθου κτιρίου την οποία επηρέασαν 14 υπουργοί Πολιτισμού.
2.
ΓΙΩΡΓΟΣ ΠΙΤΤΑΣ:
ΑΛΦΑΒΗΤΑΡΙ ΕΛΛΗΝΙΚΗΣ ΓΑΣΤΡΟΝΟΜΙΑΣ
Ο Γιώργος Πίττας μετά από επτά βιβλία-λευκώματa (1997-2019) και την ιστοσελίδα greekgastronomyguide.gr επανέρχεται με μια καινούργια έκδοση στο πλαίσιο ενός ατέρμονος οδοιπορικού σε όλη την Ελλάδα που σε πρώτη ματιά παραπέμπει στην αίσθηση των παλιών παιδικών μας αλφαβητάριων του Δημοτικού με τα σκληρά εξώφυλλα.
Ο Γιώργος Πίττας
Ένα λεξικό που εμπεριέχει χαρακτηριστικές πληροφορίες από την Ελληνική Γαστρονομία. «Μέσα από 500 λήμματα και 700 φωτογραφίες, σημειώνει στον πρόλογο ο συγγραφέας, ο αναγνώστης μπορεί να γνωρίσει εδέσματα, μεζέδες, τοπικά προϊόντα, τρόφιμα, ποτά, κρασιά και να περιηγηθεί σε πανηγύρια, αγορές, τοπία και terroirs, να μάθει για κτίσματα και σκεύη, για συνήθειες και εμβληματικούς ανθρώπους με την βοήθεια του ποιητικού στίχου και των δημοτικών τραγουδιών, τον διηγηματικό λόγο και τις λαϊκές παροιμίες.»
Ενδιαφέρον έχουν τα άρθρα μετά την εισαγωγή που αναφέρονται στην ιστορία της γαστρονομίας από την αρχαιότητα μέχρι και τον 20ο αιώνα και την σχέση της με τον Τουρισμό.
Το Λεξικό είναι συναρπαστικό. Ξεφυλλίζοντας το, σύντομα ο αναγνώστης ανακαλύπτει ότι τα κείμενα των λημμάτων και οι φωτογραφίες που τα συνοδεύουν αποκαλύπτουν πληροφορίες που μας αιφνιδιάζουν και διαβάζονται ευχάριστα. Eπιλέγοντας τυχαία θέματα συνειδητοποίησα ότι πέρασαν ευχάριστα κάποιες ώρες, απολαμβάνοντας τις περιγραφές και τις εικόνες γοητευτικών χώρων από όλη την επικράτεια, καθώς και ελκυστικών εδεσμάτων, νοιώθοντας συχνά τους σιελογόνους αδένες να ενεργοποιούνται μαζί με ένα ευχάριστο αίσθημα βουλιμίας.
Ο Πίττας μας εναποθέτει με τον καλύτερο τρόπο τις βιωμένες απολαυστικές του στιγμές και μας προσκαλεί να τον ακολουθήσουμε στις περιπλανήσεις του και παράλληλα μας προκαλεί μια ευγενική ανομολόγητη ζήλεια για όλα όσα έχει την τύχη και την επιμονή να ανακαλύπτει.
Το βιβλίο μπορείτε να προμηθευτείτε τώρα από τα e-shop των βιβλιοπωλείων Πολιτεία και Public, και μετά την άρση των μέτρων σε όλα τα βιβλιοπωλεία. σελ. 384, €25
3.
ΔΗΜΗΤΡΗΣ ΦΙΛΙΠΠΙΔΗΣ:
ΑΝΩΝΥΜΗ ΑΡΧΙΤΕΚΤΟΝΙΚΗ
Μία άρρητη παρουσία
Δημήτρης Φιλιππίδης
Επανέρχομαι σήμερα με αυτό το σημαντικό βιβλίο του Δημήτρη Φιλιππίδη που έχει ξαναπαρουσιαστεί σε αυτό το μπλογκ, με αφορμή ένα εξαιρετικό βίντεο που πραγματοποίησε για αυτή την έκδοση το Πολιτιστικό Ιδρύματος Ομίλου Πειραιώς και ευγενικά μας παραχώρησε την άδεια δημοσίευσης.
Το σκηνοθέτησε η Νατάσσα Ε. Ιωάννου, με αφορμή την προβολή του βιβλίου στην φετινή διαδικτυακή 17η Διεθνή Έκθεση Βιβλίου Θεσσαλονίκης και εντάχθηκε στην σχετική ιστοσελίδα (δείτε εδώ). Αξίξει να παρακολουθήσετε στην συνέχεια το βίντεο αυτό με "πρωταγωνιστή" τον Δημήτρη Φιλιππίδη που μιλά για το βιβλίο.
ή κάντε ΚΛΙΚ εδώ
Κάντε ΚΛΙΚ στις εικόνες για μεγέθυνση
















Γιώργο καλημέρα σου,
ReplyDeleteχτες άκουγα μια γλυκιά φωνή όσο οδηγούσα, ήσουν εσύ στο Τρίτο. Ωραία η συζήτηση, και περί των νέων, συμφωνώ, όμως μέσα από ποιές δομές ; μάλλον ως ανιδιοτελής προσφορά.
ευχαριστώ κια για την ανάρτηση του βιβλίου μου,
ΝίκοΣκ.