314 ARCHITECTURE STUDIO:
OPTOMETRIST-STORE ΣΤΗΝ ΧΑΛΚΙΔΑ
μια διαφορετική προσέγγιση
προς ένα ιδιότυπο "τοπικισμό"
προς ένα ιδιότυπο "τοπικισμό"
C_29 / ’Optimist’, κατάστημα οπτικών στην Χαλκίδα
Την δουλειά και τις εκκεντρικές προτάσεις του αρχιτέκτονα Παύλου Χατζηαγγελίδη και της ομάδας του, του γραφείου "314 architecture studio", που προβάλλονται έντονα τελευταία, τις παρακολουθώ διακριτικά και από απόσταση.
Πολυκατοικία στην Βούλα Αττικής, συμμετοχή στην 8η Mπιενάλε του Ελληνικού Ινστιτούτου Αρχιτεκτονικής
Μονοκατοικία στην Ανατολική Αττική, υποψήφια για το ευρωπαϊκό βραβείο αρχιτεκτονικής Mies van der Rohe για το 2015
Η μελέτη μιας πολυκατοικίας στην Βούλα για την συμμετοχή στην 8η Mπιενάλε του Ελληνικού Ινστιτούτου Αρχιτεκτονικής, που διακρίθηκε και κυρίως η συμμετοχή με την μονοκατοικία στην ανατολική Αττική, στις 5 υποψηφιότητες για τα αρχιτεκτονικά βραβεία Mies Van der Rohe 2015, μου προκάλεσαν έναν πρόσκαιρο εντυπωσιασμό, λόγω των γεωμετρικών και στατικών ακροτήτων, των τολμηρών χαράξεων και της έντονης τάσης για μια υπέρμετρη αφαίρεση.
C_29 / ’Optimist’, κατάστημα οπτικών στην Χαλκίδα,
λεπτομέρεια όψης
Μια διαφορετική όμως προσέγγιση ενός νέου έργου του αρχιτέκτονα Παύλου Χατζηαγγελίδη, που δημοσιεύτηκε στο διαδικτυακό περιοδικό dezeen και όχι μόνο, μου κίνησε το ενδιαφέρον. Οι πέτρινοι τοίχοι, η αυλή στον ακάλυπτο, τα μεσοπολεμικά δοκάρια στην οροφή, οι ασπρισμένες και χοντροσοβαντισμένες επιφάνειες, τα ξύλινα κουφώματα, τα αυτοσχέδια φωτιστικά, οι λεπτές μεταλλικές κατασκευές, ακόμη και οι αναφορές στις «φλοκάτες», συγκροτούν ένα κώδικα ελκυστικό και πρωτότυπο που έχει προκύψει από μια μοναδική επεξεργασία, με γνώμονα την αφαίρεση.
Οι πέτρινοι τοίχοι
η αυλή στον ακάλυπτο
τα μεσοπολεμικά δοκάρια στην οροφή
τα ξύλινα κουφώματα
τα αυτοσχέδια φωτιστικά
ακόμη και αναφορές στις «φλοκάτες»
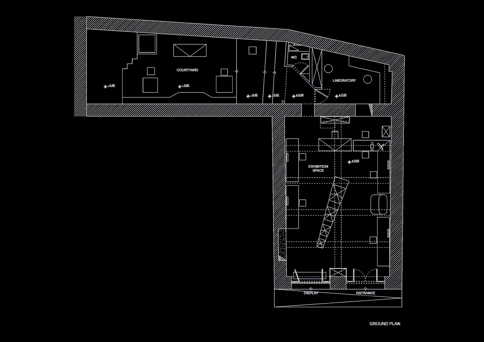
Πρόκειται για την μετατροπή ενός παλαιού καταστήματος σε ένα μεσοπολεμικό διατηρητέο κτίριο στο κέντρο της Χαλκίδας (Κριεζώτου 5), σε κατάστημα οπτικών με την επωνυμία C_29 / ’Optimist’, που με ευαισθητοποίησε μια και αποκαλύπτεται μια άλλη πτυχή του γραφείου 314, μια άλλη αναπάντεχη ευαισθησία, που μου κίνησε το ενδιαφέρον και θέλησα να το δημοσιεύσω.
Είναι νομίζω σημαντικό και θάθελα να το επισημάνω ότι οι συνθετικές ικανότητες των νέων αρχιτεκτόνων όταν υποτάσσονται σε μορφές, σε κελύφη, αξίες και μνήμες αυτού του τόπου, μπορούν να οδηγήσουν σε εξαιρετικά αποτελέσματα. Συγκροτούν δηλαδή μια ελληνική ταυτότητα που ξεχωρίζει διεθνώς, από οποιαδήποτε άλλη χειρονομία και επιλογή, που αναπαράγει άμεσα ή έμμεσα το απρόσωπο διεθνές φορμαλιστικό ρεύμα εντυπωσιασμού.
Το έργο αυτό εμπεριέχει παράλληλα, με έναν ευρηματικό τρόπο, το ατελές, την φθορά και το non finitο, που παραπέμπει σε εικαστικές προσεγγίσεις με τοπικό χαρακτήρα, σε έργα του Τσόκλη και του Σόρογκα με διεθνή επίσης απήχηση, μέσα σε μια ατμόσφαιρα γκαλερί.
Σωτήρης Σόρογκας, Πέτρες,
Ακρυλικό και κάρβουνο σε μουσαμά 80x100 εκ.
Προς αυτήν την κατεύθυνση συμβάλουν και τα χρηστικά αντικείμενα που παίζουν ένα ρόλο πρισματικών γλυπτών.
τα χρηστικά αντικείμενα,
παίζουν ένα ρόλο πρισματικών γλυπτών
Θα τολμούσα να επισημάνω ότι διατυπώνεται ένας νέος διακριτικός "τοπικισμός" από μια γενιά που έχει γυρίσει την πλάτη -και όχι εν αδίκω- σε εμμονές σε τοπικές αξίες και παραδόσεις.
Η τόλμη αυτού του εγχειρήματος αποκτά μια άλλη διάσταση στο βαθμό που πραγματοποιείται σε μια επαρχιακή πόλη και απευθύνεται σε ένα κοινό που τα τελευταία χρόνια βιώνει παράδοξες αρχιτεκτονικές επιλογές, όπως η γνωστή υπερσχεδιασμένη γέφυρα στην είσοδο την πόλης της Χαλκίδας από τον βορρά, που θεωρώ ότι είναι προς ανατίναξη!
Architect: 314 Architecture studio
Design team: Pavlos Chatziangelidis, Giota Chala, Theodora Papadopoulou, Stelios Dilintas, Andrea Bratu, Karolina Balionyte, Angeliki Kokkosi, Maria Nikolousi, Elvin Demiri
Construction: SUCH
Year: 2015
Κάντε ΚΛΙΚ στις εικόνες για μεγένθυση





















No comments :
Post a Comment